top of page

DESIGN FOR LIFE
SUNFLOWER
TEAM COMPETITION
In this project we were asked as a team to design a reception and a guest room. The parts that worked on was coming up with the concept which was a sun flower as well as i took care of customizing the reception table as well as the kitchen and rest room in the guests area
![]() SUNFLOWER | ![]() 3DS PLAN | ![]() PATTERN |
|---|






As the Sunflower is native to North America, this concept was about taking
something that does not necessarily fit in and putting it in a new environment
is what drove this design. Elements were extracted from the Sunflower and
then abstracted to create some visual interest and develop the color scheme.
Instead of using the traditional elements for this design, it was more appropriate to follow the path of modernism , simplicity ,and beauty by using this powerful flower’s features.
THE GUEST ROOM LAYOUT
The Part I was assigned to work on in this team project was those two areas as
the rest were divided on the rest of the team
ABOUT THE CONCEPT
Our concept is to represent power and energy within beauty, by providing an
active & multi functional spaces that gives the user the feeling of home.
“ SUN FLOWER “.
One of the Fastest Growing Plant
Two Types of leaves ( Upper & Lower) “ more the 1 direction”
They Track The Sun
They Provide food , shade, structure, and energy
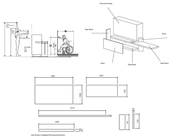
RECEPTION DESIGN CONCEPT
The design concept of the reception desk, Solis, is derived from the sun. A powerful combination of four different materials where each one has a different texture and feel and they radiate in the lobby to guide the guests. The design shows simplicity in geometry, each piece is customized and made into different sizes and later made into one to meet the requirements of the clients, the ADA requirements as well as bring the lobby together with this beautiful customized piece.
bottom of page












































